6 locali in vendita

Ravenna, Viale degli Oleandri - Marina Romea
€ 530.000
6 locali 6 locali
211 Mq 211 Mq
3 bagni 3 bagni

6 locali in vendita

Ravenna, Viale degli Oleandri - Marina Romea

Descrizione annuncio

MARINA ROMEA

In contesto riservato e tranquillo, a pochi minuti dalla pineta e dal mare di Marina Romea, proponiamo villa indipendente di testa in trifamiliare, edificata negli anni ’80 e completamente ristrutturata nel 2015 con finiture moderne e materiali di alta qualità.

Una soluzione ideale sia come abitazione principale che come elegante casa vacanze, grazie agli ampi spazi interni ed esterni e alla posizione esclusiva.


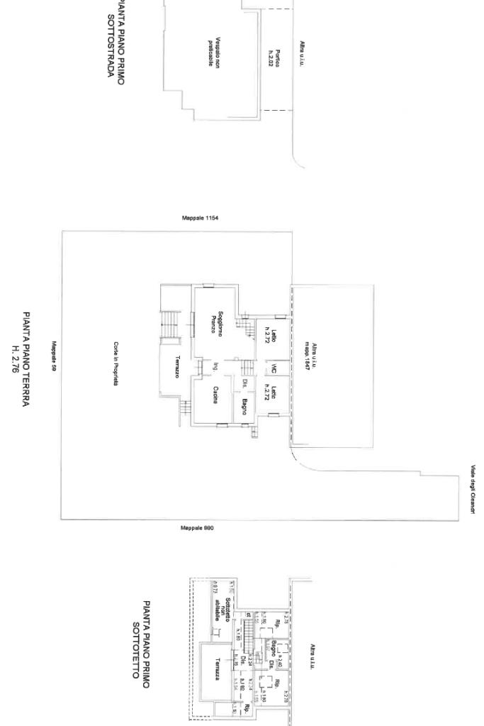
La villa si sviluppa su due livelli:

PIANO TERRA RIALZATO
• Ingresso
• Ampia zona giorno di 34 mq con accesso a terrazzo coperto di 30 mq
Cucina abitabile di 16 mq
Due camere matrimoniali
Due bagni di design, di cui uno finestrato

PIANO PRIMO (SOTTOTETTO)
• Due ambienti con lucernari Velux, ideali come camera singola e studio
• Due ripostigli
Terrazzo solarium di 16 mq
Terzo bagno finestrato

SPAZI ESTERNI

Garage doppio
Giardino privato di 500 mq, in parte pavimentato, dotato di:
• Pergolato
• Zona doccia
• Deposito biciclette
• Illuminazione esterna
• Barbecue
Uno spazio perfetto per vivere l’esterno in ogni stagione e organizzare momenti conviviali.

FINITURE E DOTAZIONI
• Gres effetto legno sbiancato nella zona giorno
• Parquet nelle camere
• Parquet al piano superiore (bagno escluso)
• Infissi in legno bianco con doppi vetri e scuroni esterni in legno
• Impianto fotovoltaico da 6 kW
• Aria condizionata
• Guaina rifatta nel 2015

Contattaci per ulteriori informazioni o per fissare un appuntamento al 05441885626 / 3755352081 o invia una e-mail a raca8 e sarai ricontattato al più presto.

Mostra tutto

Nelle vicinanze

Trasporto pubblico Trasporto pubblico
Trasporto pubblico
1,7 Km
Ricariche auto elettriche Ricariche auto elettriche
EnelX Piazza Italia Marina Romea
1,4 Km
Farmacia Farmacia
Farmacia S. Stefano
670 m
Supermercati Supermercati
Supermercati
2,7 Km
Negozi Negozi
Negozi
200 m
La Pequena
660 m
Suerte
980 m
Bar Bar
Quartier Generale
680 m
Le Pleiadi
960 m
Ristoranti Ristoranti
Il Ritrovo
320 m
Bagno Stefano da Michele
660 m
Boca Barranca
680 m
Bagno Azzurro
750 m
Bagno Nettuno
810 m
Mostra tutto

Caratteristiche

Rif.:
61155226
Piano:
Su più livelli di 2
Totale piani:
2
Box:
1
Posti auto:
4
Terrazzi:
2
Mostra tutto
Prezzo Prezzo
€ 530.000
Rata mutuo Rata mutuo
€ 2.497 / mese
Spese annue Spese annue
€ 0
Proponi il tuo prezzoProponi il tuo prezzo

Classe Energetica

D
D
D
D
D
D
D
D
D
EP globale non rinnovabile:
170.44 kW h/m² anno
EP globale rinnovabile:
11.66 kW h/m² anno
EP invernale del fabbricato:
EP estiva del fabbricato:
Anno di costruzione:
1987
Riscaldamento:
Autonomo
Tipo impianto:
A radiatori
Tipo alimentazione:
Metano

Ti interessa visionare l'immobile?

Fissa un appuntamento  Fissa un appuntamento

Richiedi informazioni

Clicca su Leggi per aprire l'informativa
* Questi campi sono obbligatori

Calcola il tuo mutuo

Semplice e senza impegno
Anticipo

( % )
Mutuo

( % )

pochi semplici passi

inserisci i tuoi dati
Questionario completato
Grazie per aver richiesto un appuntamento senza impegno con un nostro Consulente del Credito e Assicurativo.

Hai inserito correttamente tutti i dati necessari e a breve riceverai una e-mail con un link da convalidare per inviare i tuoi dati.
Affiliato
Studio Macaone Srl
Viale Delle Palme, 3 48100 Ravenna (RA)

Il nostro staff


  • Giulio Donati
    Affiliato

  • Federica Cappelli
    Coordinatrice

  • Matteo Lanconelli
    Collaboratore

  • Matteo Mirri
    Collaboratore

  • Andrea Pietro Samorì
    Collaboratore
Viale Delle Palme, 3 48100 Ravenna (RA)
Zona: Marina Romea-Porto Corsini-Casal Borsetti
Mostra su mappa
Affiliato
Studio Macaone Srl
Viale Delle Palme, 3 48100 Ravenna (RA)

2026 Tecnocasa Franchising S.p.A. - P. IVA 08365160152 - Via Monte Bianco 60/A 20089 Rozzano (MI). Ogni agenzia ha un proprio titolare ed è autonoma. Privacy policy | Policy utilizzo | Cookie policy