Quadrilocale in vendita

Ravenna, Via Don Franco Stevanato - Casal Borsetti
€ 237.000
4 locali 4 locali
111 Mq 111 Mq
2 bagni 2 bagni

Quadrilocale in vendita

Ravenna, Via Don Franco Stevanato - Casal Borsetti

Descrizione annuncio

CASALBORSETTI

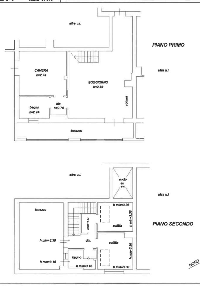
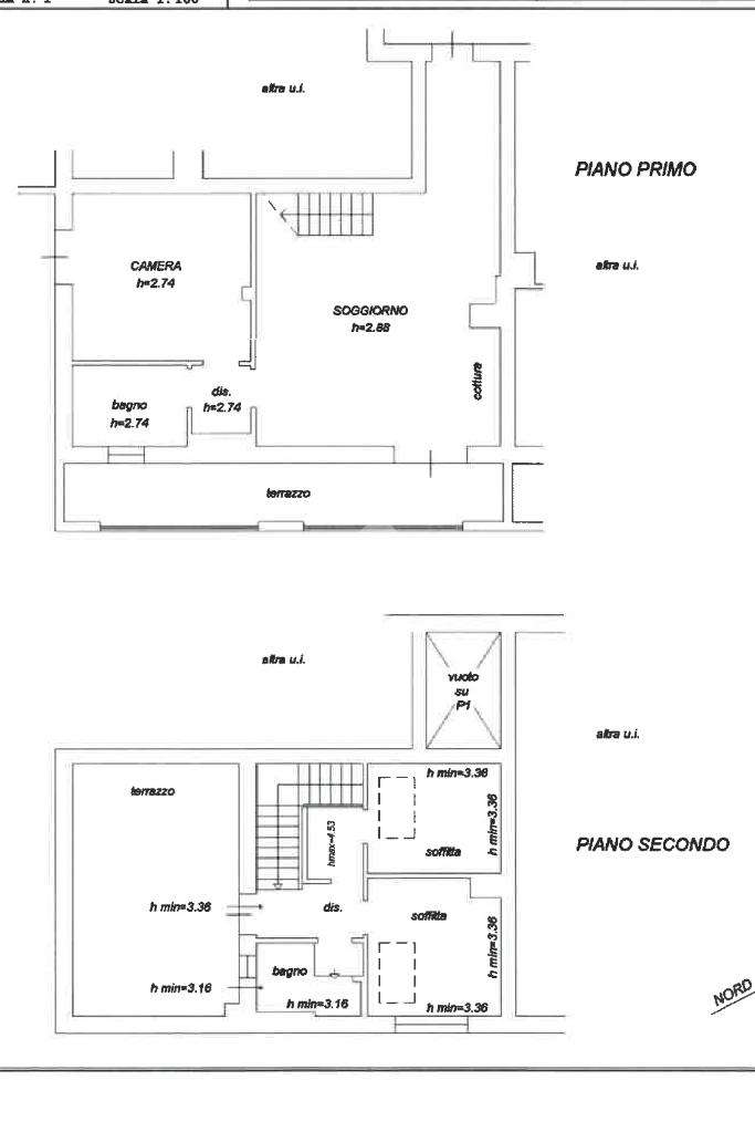
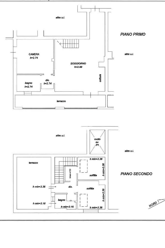
In una zona tranquilla e ben servita di Casalborsetti Sud, a pochi metri dal mare, proponiamo in vendita un accogliente appartamento su due livelli situato al primo piano di un contesto curato.

Al piano principale ci accoglie un ampio soggiorno con angolo cottura, reso particolarmente luminoso dalle grandi finestre e con accesso diretto al balcone ideale per momenti di relax.
Completano il piano un bagno finestrato con vasca e una camera matrimoniale spaziosa e confortevole.

Salendo al secondo livello, troviamo due camere singole, perfette per figli, studio o ospiti, un secondo bagno finestrato con doccia e una splendida terrazza solarium, dove godersi il sole e la tranquillità.

L’immobile si distingue per i soffitti con travi a vista in legno, che donano calore e carattere a ogni ambiente.
Dotato di riscaldamento a radiatori, climatizzatori e posto auto assegnato.

Un’abitazione ideale per famiglie o coppie che cercano spazi comodi e luminosità, senza rinunciare alla praticità.

Contattaci per ulteriori informazioni o per fissare un appuntamento al 05441885626 / 3755352081 o invia una e-mail a raca8 e sarai ricontattato al più presto.

Mostra tutto

Nelle vicinanze

Trasporto pubblico Trasporto pubblico
Bivio Cascina
Bivio Cascina
2,7 Km
Farmacia Farmacia
Farmacia
390 m
Supermercati Supermercati
Despar
520 m
Casalborsetti
520 m
Negozi Negozi
Negozi
240 m
Bar Bar
San Marino Café
380 m
bar hotel Europa
460 m
Bar Ristoro
950 m
Ristoranti Ristoranti
Ristorante Pizzeria Nautilus
280 m
Cantuccio
340 m
La Capannina sul Mare
360 m
Rosticceria Sale & Pepe
390 m
Bagno Molo
450 m
Mostra tutto

Caratteristiche

Rif.:
61123335
Piano:
1 di 2 (ultimo Piano)
Box:
1
Posti auto:
1
Balconi:
1
Terrazzi:
1
Mostra tutto
Prezzo Prezzo
€ 237.000
Rata mutuo Rata mutuo
€ 1.118 / mese
Spese annue Spese annue
€ 600
Proponi il tuo prezzoProponi il tuo prezzo
Immobile valutato con T·Valuta

Classe Energetica

F
F
F
F
F
F
F
F
F
Anno di costruzione:
1996
Riscaldamento:
Autonomo
Tipo impianto:
A radiatori
Tipo alimentazione:
Metano

Ti interessa visionare l'immobile?

Fissa un appuntamento  Fissa un appuntamento

Richiedi informazioni

Clicca su Leggi per aprire l'informativa
* Questi campi sono obbligatori

Calcola il tuo mutuo

Semplice e senza impegno
Anticipo

( % )
Mutuo

( % )

pochi semplici passi

inserisci i tuoi dati
Questionario completato
Grazie per aver richiesto un appuntamento senza impegno con un nostro Consulente del Credito e Assicurativo.

Hai inserito correttamente tutti i dati necessari e a breve riceverai una e-mail con un link da convalidare per inviare i tuoi dati.
Affiliato
Studio Macaone Srl
Viale Delle Palme, 3 48100 Ravenna (RA)

Il nostro staff


  • Giulio Donati
    Affiliato

  • Federica Cappelli
    Coordinatrice

  • Matteo Lanconelli
    Collaboratore

  • Matteo Mirri
    Collaboratore

  • Andrea Pietro Samorì
    Collaboratore
Viale Delle Palme, 3 48100 Ravenna (RA)
Zona: Marina Romea-Porto Corsini-Casal Borsetti
Mostra su mappa
Affiliato
Studio Macaone Srl
Viale Delle Palme, 3 48100 Ravenna (RA)

2025 Tecnocasa Franchising S.p.A. - P. IVA 08365160152 - Via Monte Bianco 60/A 20089 Rozzano (MI). Ogni agenzia ha un proprio titolare ed è autonoma. Privacy policy | Policy utilizzo | Cookie policy